"Wij zijn net teruggekomen vanuit jullie chalet Rose en willen jullie oprecht feliciteren met jullie chalet. Die heeft onze verwachtingen overtroffen en geeft een top kwaliteit-prijs verhouding. Gezellig ingericht, volledig uitgeruste keuken, aangename badkamers, mooie kamers met voldoende kastruimte, zonnig terras.... Echt piccobello." Els, Belgie
Chalet Rose is gebouwd in 2006. Zowel het chalet als de inrichting is zeer goed verzorgd. Het chalet is 210m2 en biedt ruimte aan 12-16 personen. Het is eenvoudig uit te breiden met kinderbedden die ter plaatse aanwezig zijn tot maximaal 18 personen. Voor de kinderen zijn verder een sjoelbak, biljarttafel, twee kinderstoelen en een kinderbox aanwezig.
Met 6 twee persoons kamers en 1 vier persoons kamer is het ideaal voor 1 of meerdere gezinnen om een heerlijke wintervakantie te vieren. Het chalet heeft 4 badkamers en 6 wc’s. In het chalet is een garage voor de auto, en buiten is plek voor drie extra auto’s.
De heerlijke ruime woonkamer heeft een open haard. Het chalet is daarnaast natuurlijk van alle gemakken voorzien (o.a. televisie, gratis WIFI, gratis openhaard hout,wasmachine, droger en afwasmachine). Het chalet ligt op 600m2 eigen grond, heeft een terras en een prachtig uitzicht naar de bergen.
Indeling:
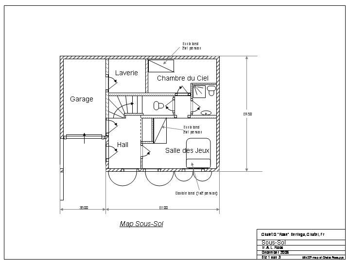
Sous-sol: Via de garage komt u in de verwarmde ‘Laverie’ waar een wasmachine en droger staan en ruimte is voor opslag van kinderwagens of fietsen. De voordeur komt uit in een hal met de trap naar boven en biedt toegang tot de ‘Salle des Jeux’ waar een stapelbed en een tweepersoons bed staan. Zoals de naam al zegt is deze kamer erg geschikt voor de kinderen om te slapen en spelen. Via de ‘Salles des Jeux’ komt u in een halletje dat toegang biedt aan een badkamer met douche, wastafel en WC. Er is ook nog een aparte WC. In dit halletje is ook de toegang tot de ‘Cave’ die als slaapkamer voor twee personen is te gebruiken. Hier staat een stapelbed.
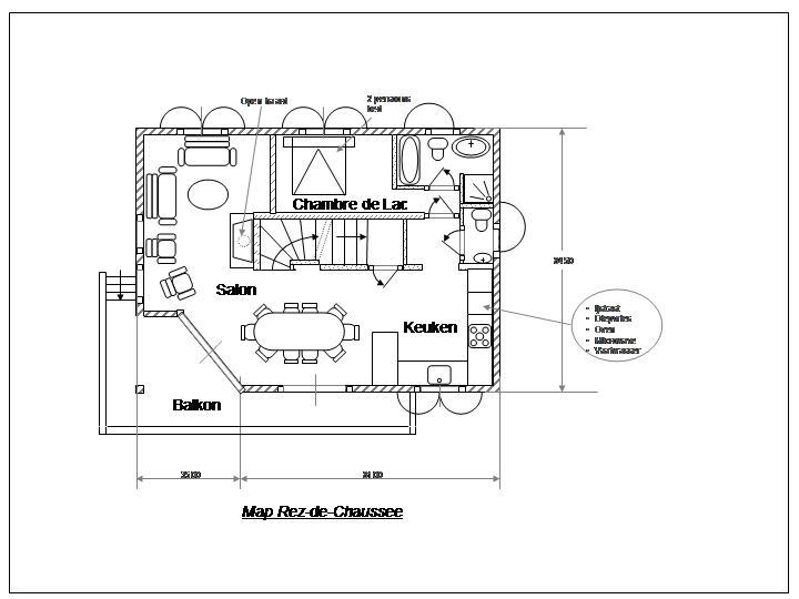
Rez-de-Chaussee: Via de trap vanuit de Sous-Sol komt u in de hal naar de zeer ruime ‘Salon’, de woonkamer met open haard en grote open keuken die van alle gemakken is voorzien. In de hal is een aparte WC. Via de hal komt u tevens in de slaapkamer met tweepersoonsbed. Deze slaapkamer heeft een eigen badkamer met bad, douche, wastafel en WC.
1e verdieping: Via de trap vanuit de ‘Salon’ komt u uit in de hal op de tweede verdieping. Hier zijn nog 4 extra slaapkamers en 2 badkamers. Een badkamer heeft een douche, WC en wastafel, de andere een ligbad en wastafel. De WC is apart. 3 slaapkamers hebben een tweepersoonsbed, een heeft twee eenpersoonsbedden. Bekijk de 360° video tour»

Upper Savoy Rental